Ref No: FA701853

St Julians
Apartment

300,000


1 Bedrooms


1 Bathrooms


Parking

61.00m2
Internal Area

0.50m2
External Area

Description

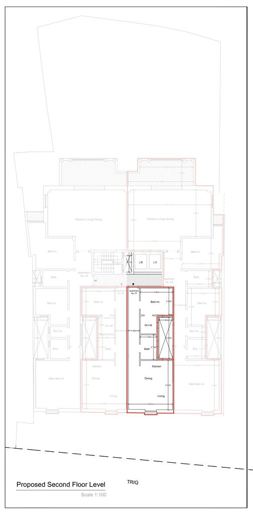
Forming part of a modern development in St Julian’s, this well-designed second floor one-bedroom APARTMENT is being offered for sale in a finished state and provides an ideal blend of comfort, efficiency, and contemporary style. With a total internal area of approximately 61 square metres, the layout has been carefully planned to maximise space and natural light throughout. The apartment opens into a welcoming entrance hall that leads into a generously proportioned, square-layout open-plan kitchen, living, and dining area, creating a practical and highly functional living environment. The bedroom is comfortably sized and is complemented by an adjacent walk-in wardrobe, offering excellent storage without compromising on living space. A well-appointed main bathroom completes the accommodation. Finished to a high standard and situated within a quality residential block, this apartment represents an excellent opportunity for first-time buyers, professionals, or investors seeking a compact yet refined property in one of St Julian’s most desirable locations. Optional lock-up garages and car spaces are available for purchase within the same block, while the property is being sold freehold, offering long-term security of ownership. Combining generous proportions, high-quality finishes, and a prime St Julian’s location, this  apartment represents a rare opportunity for both discerning homeowners and investors seeking a premium property.

Contact Us

Contact immobilien malta by getting in touch by any of the following options:

  • Susanne Herold
    Senior Management
  • 197 Tower Rd, Sliema, SLM 1602, Malta
  • +356 7928 5806
  • info@immobilienmalta.com

Send Request

Features
  • Lift Yes
  • Floorplans Yes
Additional details
  • Bedrooms 1
  • No of Bathrooms 1
  • Kitchen 1
  • Dining Room 1
  • Living Room 1
  • Hallway 1
  • Garage 1
  • Internal Size (m2) 61.00
  • External Size (m2) 0.50
  • Total Size (m2) 62.00
  • Floor Level 2
  • No.of flats in block 16
  • Type of layout Open plan

Local Information St Julians

St. Julian's is now a major residential and tourist centre, and home to some of Malta's newest hotels. It is now an extension of Sliema although it started life as a small fishing port based on Spinola and Balluta Bays. St. Julian's merges with Paceville, Malta's main nightlife centre where there are clubs, casinos and numerous restaurants, cafes and bars. Picturesque Spinola Bay is still used by fishermen whose traditional boats are housed just below the restaurants. The bay is particularly attractive at night and as a venue for open-air dining. The elegant Spinola Palace, built in 1658 by an Italian knight, Giovanni Spinola, is the landmark historic building on the bay. Another fine building with superb sea views is Villa Dragonara, now a casino, on the headland of St. George's Bay.

Find out more about property FA701853

Susanne Herold

Contact Agent

  • Susanne Herold
  • +356 7928 5806
  • info@immobilienmalta.com
View listings

Arrange a Viewing / Request Information

Our Team is Available 24/7

00356-7928-5806

Call Malta's leading estate agent for the very best selection of property for sale and to rent.